Helo Hanko

Hanko-sähkökiuas on moderni, kompakti design-uutuus, joka sopii pieniin tiloihin ja tarjoaa todella mukavat ja lempeät löylyt. Hanko on tulosta huolellisesta suunnitteluprosessista – huippusuunnittelijamme loivat kiukaan, joka täyttää vaativimmankin saunanystävän tarpeet. Hanko-kiuas on käsityönä valmistettu tehtaallamme käyttäen parhaita raaka-aineita.

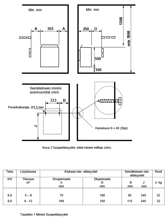
Kiukaan koko on kompakti, mutta se sisältää merkittävät 32 kg kiuaskiviä, jotka takaavat pehmeät löylyt. Kiuas itsessään on kevyt ja helppo asentaa.

Kaikki Hanko-sähkökiukaat ovat CE-merkittyjä ja tarjoavat tehokkaat, lämpimät ja pehmeät löylyt 5–12 m³ saunatiloihin.

Ominaisuudet

  • Hanko STJ -malli: Sisäänrakennettu termostaatti, ylärajan palautus ja 3 + 9 h ajastin

  • Hanko D -mallit: Ohjataan erikseen ostettavan kontaktoriboksin + Elite Free- tai Pure-ohjauspaneelin avulla


Valitse variaatio:

Alkaen 299,00 €